top of page




1/7
Norfolk, VA
2003
Mount Gilead Baptist Church
Religious
Scope of Work
The Challenge
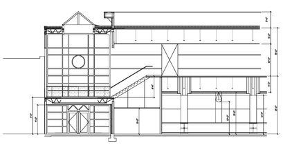
RBA was asked to provide a design for a new social hall and educational facility to fulfill the vision for the entire religious campus.
RBA studied the existing dense urban campus to determine the best location for the new facility. Once we determined that the site was viable, we designed a building that compliments the existing architectural aesthetic, while modernizing the overall campus.
Sketches & Visualizations
Construction
bottom of page





